-
-
-
-
-
-
Architectural Rendering. Illustrating the exterior facade of the property
-
Architectural Rendering. Illustrating the property's exterior design and structural composition
-
Architectural Rendering. Illustrating the exterior façade of the property from an angled perspective
-
Architectural Render. Displaying an exterior perspective of the property with a garage component
-
Architectural Rendering. Illustrating exterior design elements of the property
-
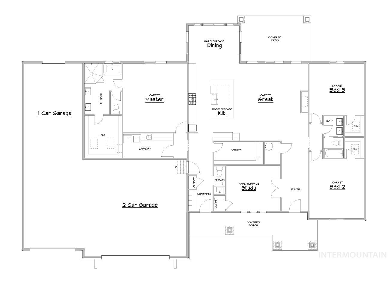
Floor plan
This isn’t just a new build, it’s a home that was engineered with intention from the foundation up with the future owner in mind. Conduit beneath the driveway, smurf tube installed in the media closet, natural gas stubbed to the back patio, fan boxes roughed into every room and the covered patio, extra height at the eaves for added insulation right where the exterior wall meets the roofline, as well as triple-pane windows throughout to seal the deal, keeping utility bills low and comfort year-round! These are the details most builders skip and the ones that save you thousands down the road! Inside, the home opens up in all the right ways. A massive 10×6 kitchen island anchors an open-concept floor plan designed for both everyday living and entertaining. Tray ceilings in the kitchen and dining area add architectural depth. A large butler’s pantry gives you the storage and staging space high-end kitchens demand. Then there’s the garage, a true standout! At 1,500 square feet and 50 feet deep, it fits four full-size vehicles with room to spare. Outside, you’ll find a generous 0.36-acre lot, a rare find in today’s market! An added bonus that the adjacent parcel is city-owned and slated to become a park. You’re not just buying a home; you’re buying into a view and open space no future neighbor will occupy! Completion expected end of June 2026!
- Heating:
- Forced Air, Gas
- Cooling:
- Central air
- Fireplace:
- Gas
- Garage Capacity:
- 4
- Country:
- US
- State:
- ID
- County:
- Elmore
- City:
- Mountain Home
- Zipcode:
- 83647
- Street:
- 310 NE Greystone Loop
- Longitude:
- W116° 18' 33.1''
- Latitude:
- N43° 9' 22.7''
- Master Bedroom Level:
- Main
- Master Bedroom Size:
- 17x19
- Bedroom 2 Level:
- Main
- Bedroom2 Size:
- 15x14
- Bedroom 3 Level:
- Main
- Bedroom3 Size:
- 15x16
- Bedroom 4 Level:
- Main
- Bedroom4 Size:
- 12x13
- Kitchen Level:
- Main
- Kitchen Size:
- 16x20
- Living Room Level:
- Main
- Living Room Size:
- 17x20
- School District:
- Mountain Home School District #1
- Elementary School:
- North - Mountain Home
- Middle School:
- Mtn Home
- High School:
- Mountain Home
- Status:
- New
- Type:
- Single Family
- Level:
- Single
- Tax Year:
- 2025
- Taxes:
- $715
- Potential Short Sale:
- No
- Age:
- Under Construction
- Auction:
- No
- Flood Ins Required:
- No
- HUD Owned:
- No
- In Foreclosure:
- No
- Land Size:
- 10000 SF - .49 AC
- Home Owner Exempt:
- No
- HOA Frequency:
- Not Applicable
- Inc Kitchen Features:
- Dishwasher, Disposal, Microwave, Pantry, Island, Double oven, Countertop-quartz, Gas Oven, Gas Range
- Lot Features:
- Sidewalks, Garden Space, Chickens, RV Parking
- Water:
- City service
- Land Use:
- Single
- Sprinkler System:
- Auto
Residential For Sale
310 NE Greystone Loop, Mountain Home, Idaho 83647
- Property Type :
- Residential
- Listing Type :
- For Sale
- Status :
- Active
- Listing ID :
- 98983786
- Price :
- $724,990
- Bedrooms :
- 4
- Bathrooms :
- 2.5
- Apx SqFt :
- 2,790 SqFt
- Year Built :
- 2026
- Lot Area :
- 0.36 Acres
- Subdivision :
- Greystone - Mtn Home
- Update Date :
- 04/27/2026 18:07:36