There is no favorite listings!
Property Description

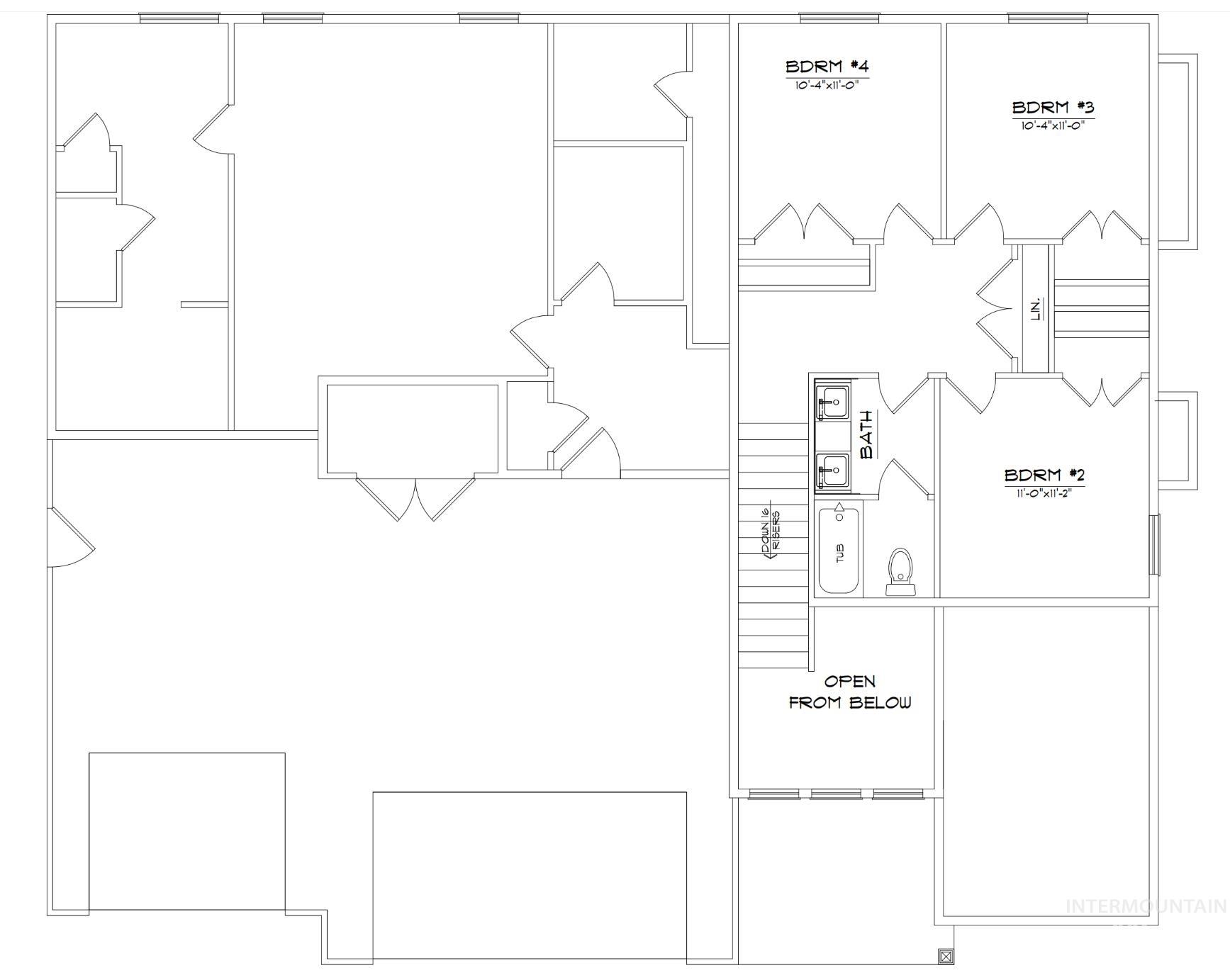
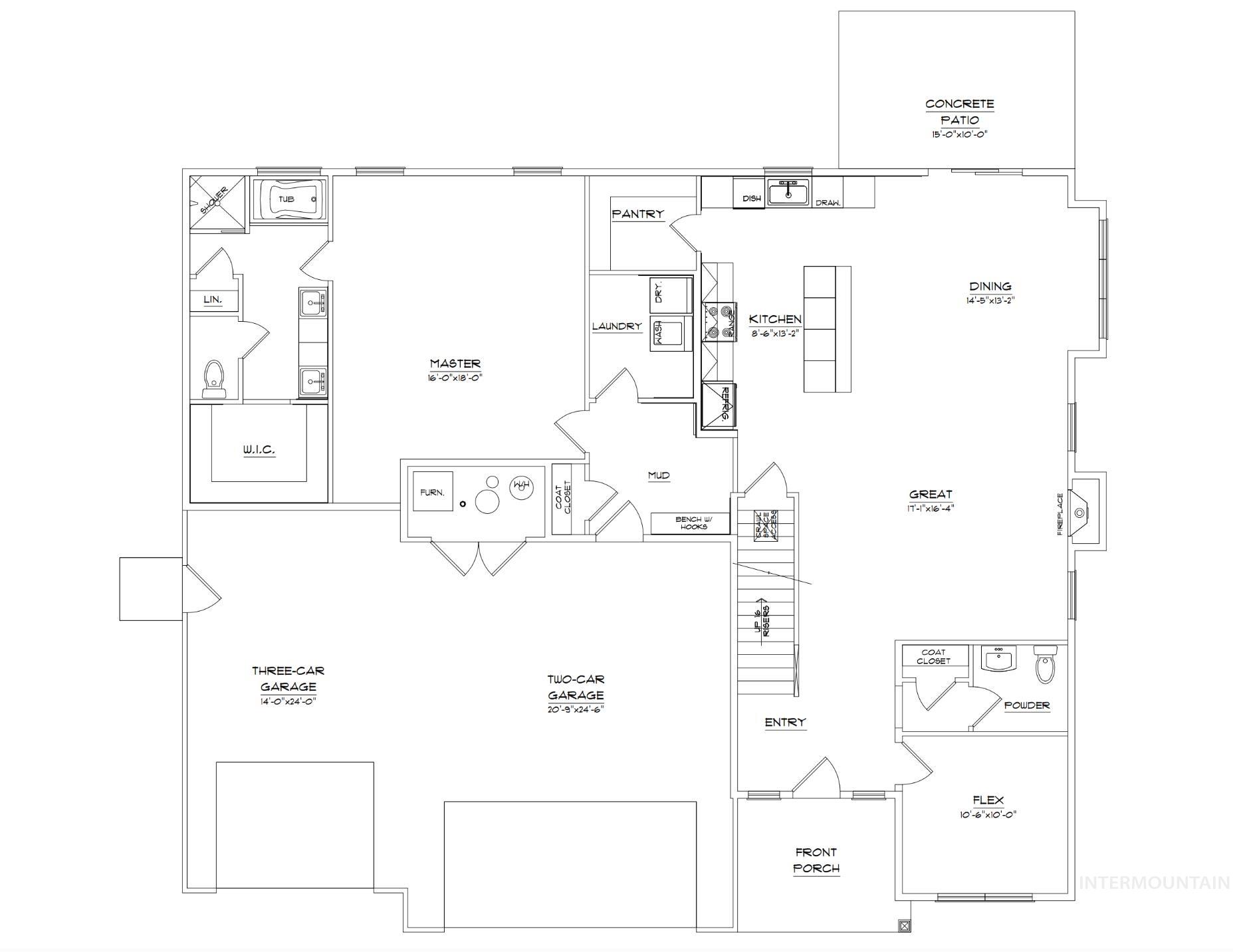
Oakridge Floor Plan by KJ Custom Builders in the sought-after Mayfield Springs planned community. This beautiful two-story new construction home offers 2,399 sq ft, 4 bedrooms, 2.5 bathrooms, and a desirable main-level primary suite for comfort and convenience. The open-concept layout features a spacious great room, dining area, and modern kitchen designed for entertaining and everyday living. A versatile main level flex room offers optimal space for an at home office or bonus room. Upstairs provides additional bedrooms, ideal for guests, or growing households. Additional highlights include a 3-car garage, quality craftsmanship, energy-efficient construction, and stylish modern finishes throughout. Located in one of the Treasure Valley’s most exciting new communities, residents enjoy walking paths, open space, and easy access to Boise, outdoor recreation, shopping, and major employment hubs. Perfect for buyers seeking new construction homes in Boise, Treasure Valley relocation opportunities, or modern homes with functional floor plans and builder quality.

Features
Heating:
Heat Pump, Forced Air, Electric
Cooling:
Central air
Fireplace:
Insert
Garage Capacity:
3
Address Map
Country:
US
State:
ID
County:
Elmore
City:
Boise
Zipcode:
83716
Street:
545 E Distributor Dr.
Longitude:
W116° 2' 19''
Latitude:
N43° 22' 37.7''
Rooms
Master Bedroom Level:
Main
Master Bedroom Size:
16x18
Bedroom 2 Level:
Upper
Bedroom2 Size:
11x11
Bedroom 3 Level:
Upper
Bedroom3 Size:
10x11
Bedroom 4 Level:
Upper
Bedroom4 Size:
10x11
Kitchen Level:
Main
Kitchen Size:
9x13
Living Room Level:
Main
Living Room Size:
17x16
Bonus Room Size:
10x10
Schools
School District:
Mountain Home School District #1
Elementary School:
East
Middle School:
Mtn Home
High School:
Mountain Home
Additional Details
Status:
Active
Type:
Single Family
Level:
Two Story
Tax Year:
2025
Potential Short Sale:
No
Age:
To Be Built
Auction:
No
Flood Ins Required:
No
HUD Owned:
No
In Foreclosure:
No
Land Size:
Standard Lot 6000-9999 SF
Land Lease:
No
Home Owner Exempt:
No
HOA Frequency:
Quarterly
HOA Fees:
$300
Inc Kitchen Features:
Dishwasher, Disposal, Microwave, Oven/range freestanding, Pantry, Island, Countertop-quartz
Lot Features:
Sidewalks, View, Finished Driveway
Water:
Community service
Land Use:
Single
Sprinkler System:
Drip,Full,Irrigation

Residential For Sale

545 E Distributor Dr., Boise, Idaho 83716

4 Bedrooms
2.5 Bathrooms
2,399 SqFt
Visits : 52 in 67 days
$690,000
Listing ID #98975078
Basic Details
Property Type :
Residential
Listing Type :
For Sale
Status :
Active
Listing ID :
98975078
Price :
$690,000
Bedrooms :
4
Bathrooms :
2.5
Apx SqFt :
2,399 SqFt
Year Built :
2026
Lot Area :
0.21 Acres
Days on Market :
10
Subdivision :
Mayfield Springs
Builder Name :
KJ Custom Builders
Update Date :
02/26/2026 01:02:15
Contact Agent
Mortgage Calculator
$
$ %
years
%
$
$

$
Style Selector
Select the layout
Choose the theme
Preset colors
No Preset
Select the pattern