Property Description
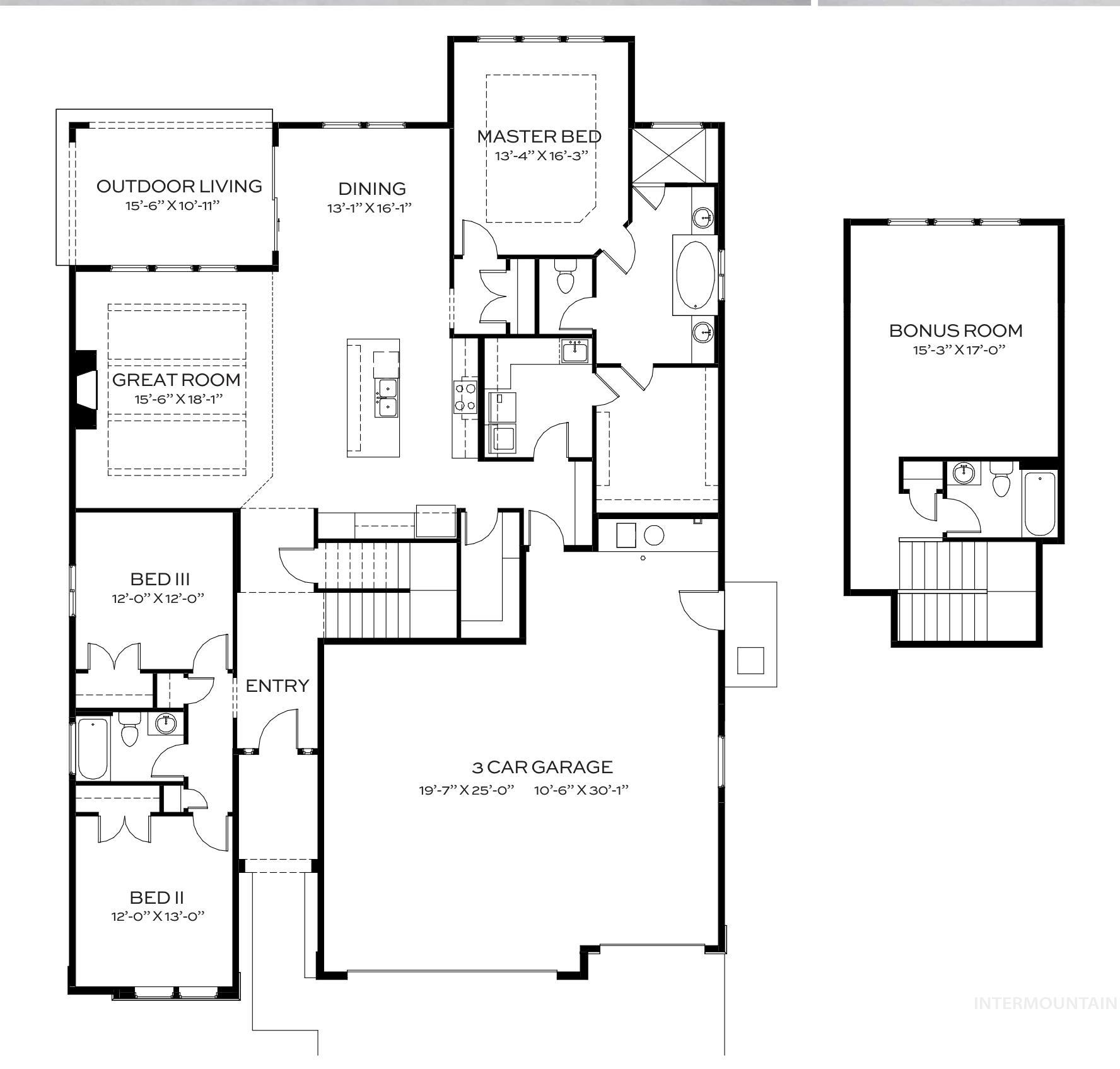
The Ventana by Tresidio Homes — a brand-new floor plan designed with comfort and function in mind. Split-bedroom layout with a private primary suite featuring dual vanities, soaking tub, tile shower, and direct access to a fully equipped laundry room. Stunning great room with coffered ceiling flows into a gourmet kitchen with quartz countertops and premium built-in stainless appliances. Upstairs bonus room with closet and full bath offers flexible space for a guest suite, media room, or home office. Extra-deep garage (25’ main bay, 30’ third bay) provides ample room for vehicles, storage, or toys. **Pictures similar**.
Features
- Heating:
- Forced Air, Gas
- Cooling:
- Central air
- Fireplace:
- Gas
- Garage Capacity:
- 3
Address Map
- Country:
- US
- State:
- ID
- County:
- Ada
- City:
- Eagle
- Zipcode:
- 83714
- Street:
- 7357 Powell Place
- Longitude:
- W117° 43' 54.2''
- Latitude:
- N43° 47' 43''
Rooms
- Master Bedroom Level:
- Main
- Master Bedroom Size:
- 13x16
- Bedroom 2 Level:
- Main
- Bedroom2 Size:
- 12x13
- Bedroom 3 Level:
- Main
- Bedroom3 Size:
- 12x12
- Bonus Room Size:
- 15x17
Schools
- School District:
- Horseshoe Bend School District #
- Elementary School:
- Horseshoe
- Middle School:
- Horse Shoe Jr
- High School:
- Horseshoe Bend
Additional Details
- Status:
- Active
- Type:
- Single Family
- Level:
- Single w/ upstairs bonus room
- Tax Year:
- 2025
- Potential Short Sale:
- No
- Age:
- To Be Built
- Auction:
- No
- Flood Ins Required:
- No
- HUD Owned:
- No
- In Foreclosure:
- No
- Land Size:
- Standard Lot 6000-9999 SF
- Home Owner Exempt:
- No
- HOA Frequency:
- Quarterly
- HOA Fees:
- $399
- Inc Kitchen Features:
- Dishwasher, Disposal, Pantry, Island, Countertop-quartz, Gas Range
- Lot Features:
- Finished Driveway
- Water:
- Community service
- Land Use:
- Recreation
- Sprinkler System:
- Auto,Drip,Pressurized Irrigation
Residential For Sale
7357 Powell Place, Eagle, Idaho 83714
3 Bedrooms
3 Bathrooms
2,610 SqFt
Visits : 86 in 69 days
$849,880
Listing ID #98974662
Basic Details
- Property Type :
- Residential
- Listing Type :
- For Sale
- Status :
- Active
- Listing ID :
- 98974662
- Price :
- $849,880
- Bedrooms :
- 3
- Bathrooms :
- 3
- Apx SqFt :
- 2,610 SqFt
- Year Built :
- 2026
- Lot Area :
- 0.17 Acres
- Days on Market :
- 22
- Subdivision :
- Avimor
- Builder Name :
- Tresidio Homes
- Update Date :
- 03/05/2026 20:59:00
Agent info
Contact Agent
Mortgage Calculator