There is no favorite listings!
Property Description

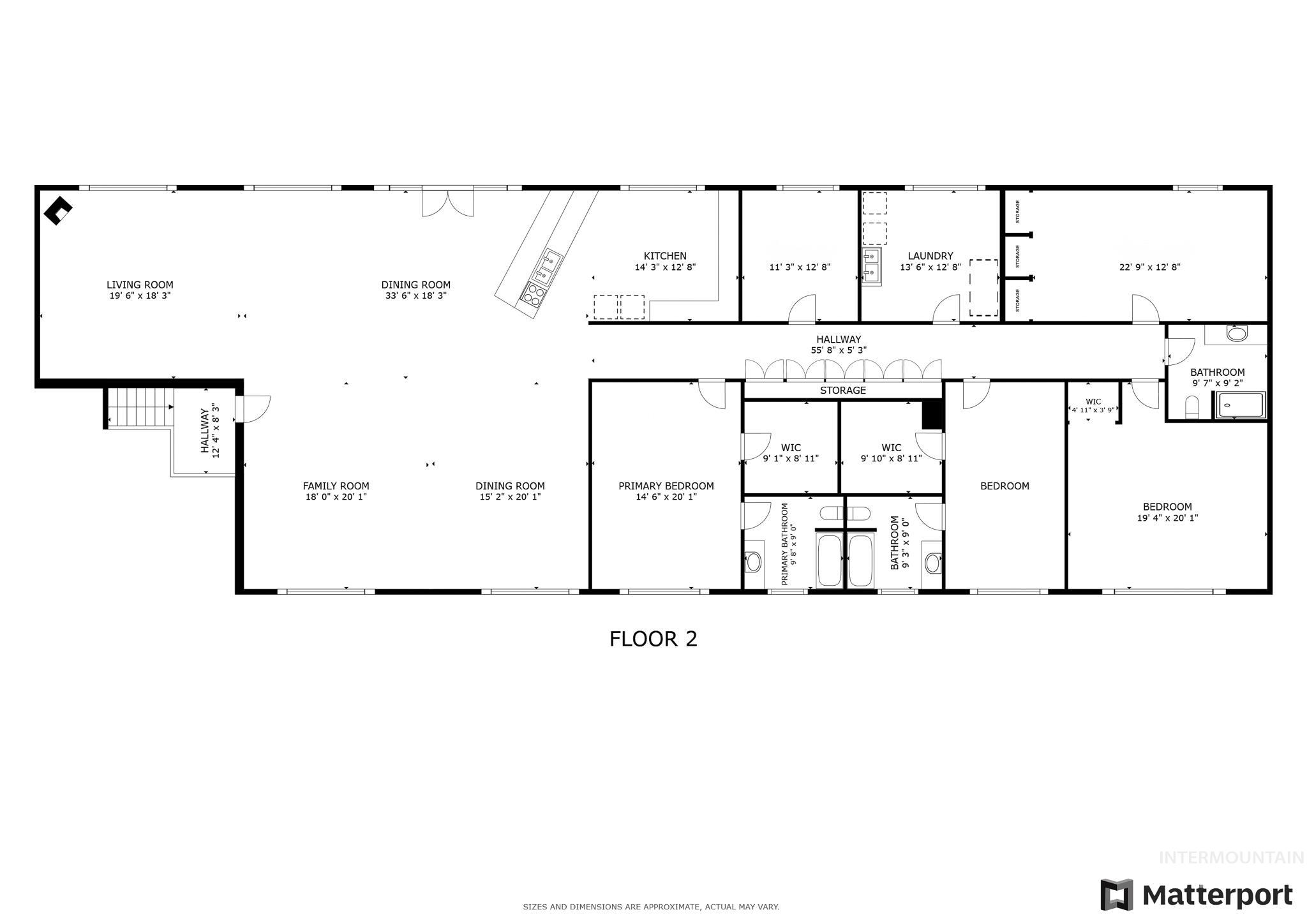
702 North D Street is a flexible residential/commercial property with 4080 sqft of living space on the upper floor and over 6000 sqft on the main level. The property encompasses 1.25 acres of prime commercial/residential real estate, with easy access to Highway 95. Whether you are looking for commercial property, residential property or a combination of the 2, this property accommodates all your needs. The building currently offers an great floor plan on the upper level that allows you to live and work at the same location without travel. Use the main floor as retail space, office space or whatever dreams you may have. Let your creative business ideas come together and generate additional income here. The building is designed with free span floor joist, so you can open the main floor to 16 ft ceilings throughout if desired. The 16 ft tall shop space is 50×40 and currently accommodates a metal fabrication business. With access from Pine St or North D St, you can expand on the potential of this property.

Features
Heating:
Wood, Electric, Baseboard
Fireplace:
One, Wood Stove
Garage Capacity:
2
Address Map
Country:
US
State:
ID
County:
Idaho
City:
Grangeville
Zipcode:
83530
Street:
702 N D Street
Longitude:
W117° 52' 13.5''
Latitude:
N45° 55' 53.6''
Rooms
Master Bedroom Level:
Upper
Bedroom 2 Level:
Upper
Bedroom 3 Level:
Upper
Bedroom 4 Level:
Upper
Kitchen Level:
Upper
Living Room Level:
Upper
Schools
School District:
Mountain View District #244
Elementary School:
Grangeville
Middle School:
Grangeville
High School:
Grangeville
Additional Details
Status:
Active
Type:
Single Family w/ Acreage
Level:
Two Story
Tax Year:
2025
Taxes:
$1,947
Potential Short Sale:
No
Age:
31 - 50 Years
Auction:
No
Flood Ins Required:
No
HUD Owned:
No
In Foreclosure:
No
Land Size:
1 - 4.99 AC
Home Owner Exempt:
No
HOA Frequency:
Not Applicable
Inc Kitchen Features:
Breakfast bar, Dishwasher, Oven/range freestanding, Refrigerator, Countertop-laminate, Countertop-tile
Lot Features:
Garden Space, Public Road, Storage Shed, RV Parking
Water:
City service
Land Use:
Single

Residential For Sale

702 N D Street, Grangeville, Idaho 83530

4 Bedrooms
3 Bathrooms
11,600 SqFt
Visits : 82 in 78 days
$650,000
Listing ID #98973768
Basic Details
Property Type :
Residential
Listing Type :
For Sale
Status :
Active
Listing ID :
98973768
Price :
$650,000
Bedrooms :
4
Bathrooms :
3
Apx SqFt :
11,600 SqFt
Year Built :
1976
Lot Area :
1.25 Acres
Days on Market :
4
Subdivision :
0 Not Applicable
Update Date :
02/07/2026 06:01:21
Contact Agent
Mortgage Calculator
$
$ %
years
%
$
$

$
Style Selector
Select the layout
Choose the theme
Preset colors
No Preset
Select the pattern