There is no favorite listings!
Property Description

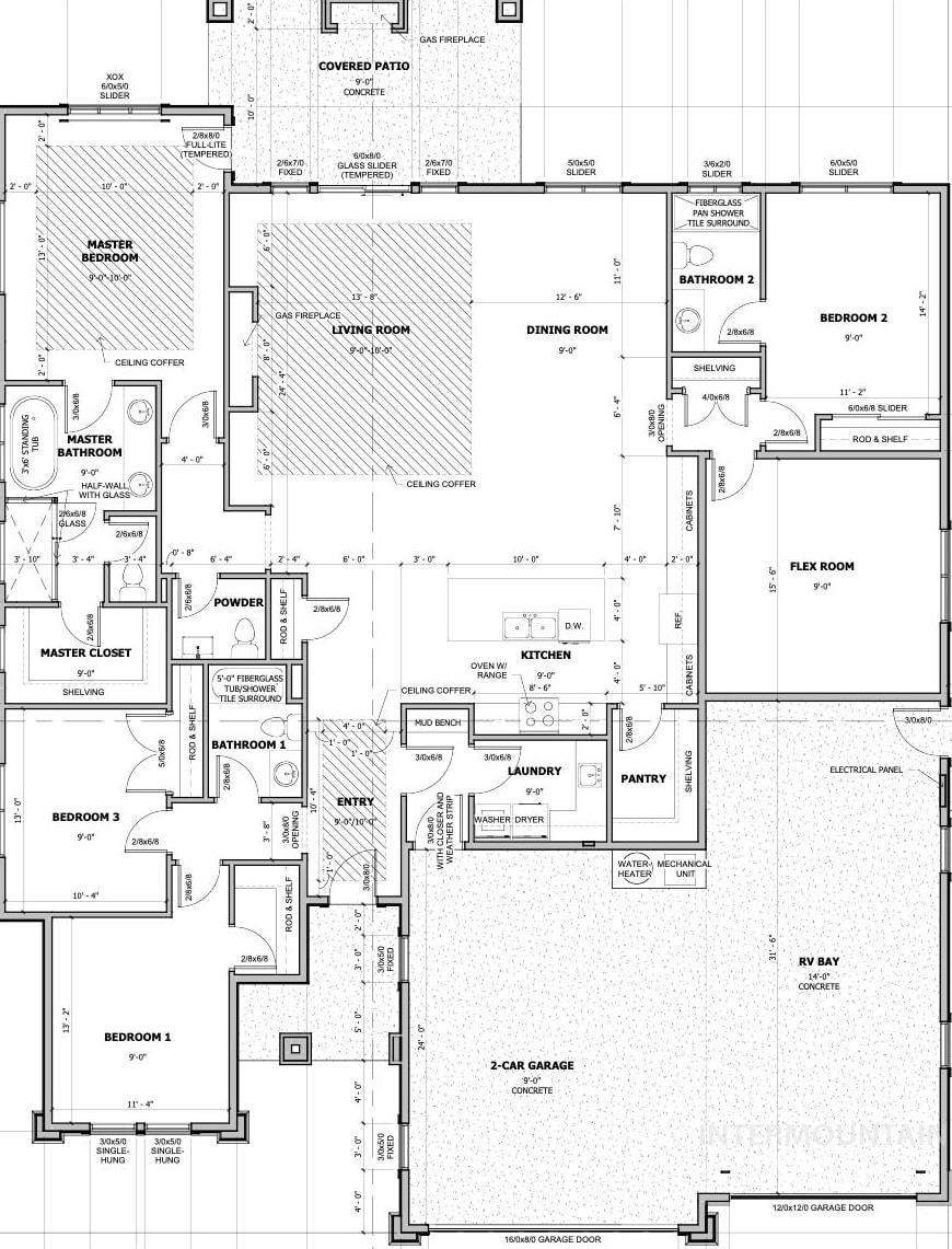
Stunning single-level home on a corner lot in Centerra, to be built by RTL Homes, featuring a spacious open layout with wide plank hardwood flooring throughout. The chef’s kitchen is a true showpiece with white backsplash tile, an oversized island, Thermador gas cooktop, Thermador dual ovens, and designer Alloway light fixtures, flowing seamlessly into the spacious great room with an elegant oversized fireplace. Designed with a split-bedroom floorplan, the primary suite offers custom ceiling details, a generous walk-in closet, and an en suite bathroom featuring quartz flooring and countertops, dual vanities, an oversized soaking tub, a walk-in shower, and private access to the covered patio with an outdoor fireplace. A dedicated office or flex room provides versatile additional space, while the impressive RV bay adds exceptional functionality. Thoughtfully designed with premium finishes and striking architectural details throughout, this home is perfectly situated for Eagle living within a walkable community just minutes from charming downtown Eagle. Centerra offers the ideal blend of convenience, style, and upscale comfort—truly the place to be. PHOTO SIMILAR

Features
Heating:
Forced Air, Gas
Cooling:
Central air
Fireplace:
One, Gas
Garage Capacity:
4
Address Map
Country:
US
State:
ID
County:
Ada
City:
Eagle
Zipcode:
83616
Street:
864 N Gracie Ave
Longitude:
W117° 36' 16.9''
Latitude:
N43° 42' 9.9''
Rooms
Master Bedroom Level:
Main
Master Bedroom Size:
14x17
Bedroom 2 Level:
Main
Bedroom2 Size:
14x11
Bedroom 3 Level:
Main
Bedroom3 Size:
13x10
Bedroom 4 Level:
Main
Bedroom4 Size:
13x11
Kitchen Level:
Main
Kitchen Size:
14x10
Living Room Level:
Main
Living Room Size:
24x14
Bonus Room Size:
15x14
Schools
School District:
West Ada School District
Elementary School:
Eagle
Middle School:
Eagle Middle
High School:
Eagle
Additional Details
Status:
Active
Type:
Single Family
Level:
Single
Unit #:
Lot 11/3
Tax Year:
2024
Potential Short Sale:
No
Age:
Under Construction
Auction:
No
Flood Ins Required:
No
HUD Owned:
No
In Foreclosure:
No
Land Size:
10000 SF - .49 AC
Home Owner Exempt:
No
HOA Frequency:
Quarterly
HOA Fees:
$550
Irrigation District:
Dry Creek Ditch Co
Inc Kitchen Features:
Breakfast bar, Dishwasher, Disposal, Microwave, Pantry, Island, Double oven, Oven/range built-in, Countertop-quartz, Gas Range
Lot Features:
Sidewalks, Irrigation Available, Finished Driveway
Water:
City service
Land Use:
Single
Sprinkler System:
Irrigation

Residential For Sale

864 N Gracie Ave, Eagle, Idaho 83616

4 Bedrooms
3.5 Bathrooms
2,810 SqFt
Visits : 40 in 15 days
$1,198,000
Listing ID #98973502
Basic Details
Property Type :
Residential
Listing Type :
For Sale
Status :
Active
Listing ID :
98973502
Price :
$1,198,000
Bedrooms :
4
Bathrooms :
3.5
Apx SqFt :
2,810 SqFt
Year Built :
2026
Lot Area :
0.29 Acres
Days on Market :
4
Subdivision :
Centerra
Builder Name :
RTL
Update Date :
02/05/2026 06:01:35
Contact Agent
Mortgage Calculator
$
$ %
years
%
$
$

$
Style Selector
Select the layout
Choose the theme
Preset colors
No Preset
Select the pattern