There is no favorite listings!
Property Description

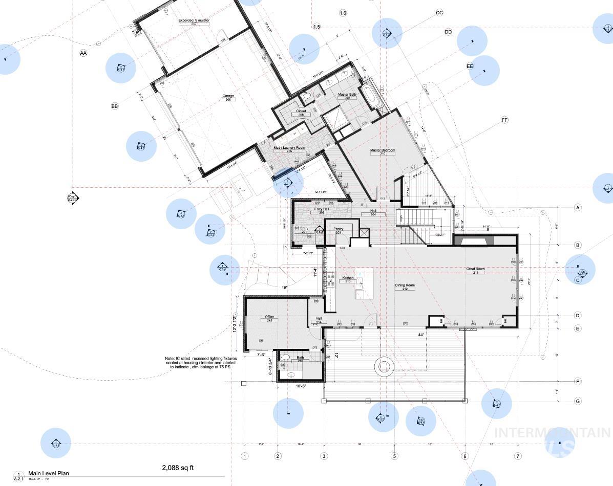
Approved Building Plans & Panoramic Views in this beautiful private lake gated community— Blackhawk Lake Estates. Introducing a rare opportunity to build a mountain retreat on this 1.41 acre rim lot with stunning panoramic views of the Payette River Valley and Jughandle Mountain, providing an idyllic backdrop for your custom home. Has Architecture Review Board approval, comes with complete architectural and structural drawings, and a builder familiar with the project, this property is ready for you to create your custom dream home. Blackhawk Lake Estates offers a range of exclusive amenities, including a private lake with a beach and dock for non-motorized boats, paddle boards, and kayaks. Residents have access to the owners’ clubhouse and 7 miles of private trails along the Payette River, perfect for year-round outdoor activities such as hiking, biking, cross-country skiing, and snowshoeing. Located 7 miles from downtown McCall. Close proximity to Brundage Mtn Resort and Tamarack Resort.

Address Map
Country:
US
State:
ID
County:
Valley
City:
McCall
Zipcode:
83638
Street:
Lot 15 Northwood Ct
Longitude:
W117° 49' 51.4''
Latitude:
N44° 50' 56.7''
Schools
School District:
McCall-Donnelly Joint District #
Additional Details
Status:
Active
Type:
Building Lots
Tax Year:
2025
Taxes:
$575
Potential Short Sale:
No
Auction:
No
Flood Ins Required:
No
In Foreclosure:
No
Land Size:
1 Acre - 4.99 Acres
HOA Frequency:
Annual
HOA Fees:
$2,500
Manu Homes Allowed:
No
Electric:
Available
Gas:
No
Land Use:
Single

Land For Sale

Lot 15 Northwood Ct, McCall, Idaho 83638

1.41 Acres
Visits : 56 in 26 days
$209,000
Listing ID #98982399
Basic Details
Property Type :
Land
Listing Type :
For Sale
Status :
Active
Listing ID :
98982399
Price :
$209,000
Lot Area :
1.41 Acres
Days on Market :
6
Subdivision :
Blackhawk Lake
Update Date :
04/21/2026 04:44:51
Contact Agent
Mortgage Calculator
$
$ %
years
%
$
$

$
Style Selector
Select the layout
Choose the theme
Preset colors
No Preset
Select the pattern