-
-
-
-
-
-
-
-
-
-
-
-
-
-
-
Proposed View of front of home with covered porch and a chimney
-
Preliminary/Proposed
-
-
-
-
-
-
There are preliminary exterior finishes.
-
-
-
-
-
-
View of room layout
-
View of room layout
-
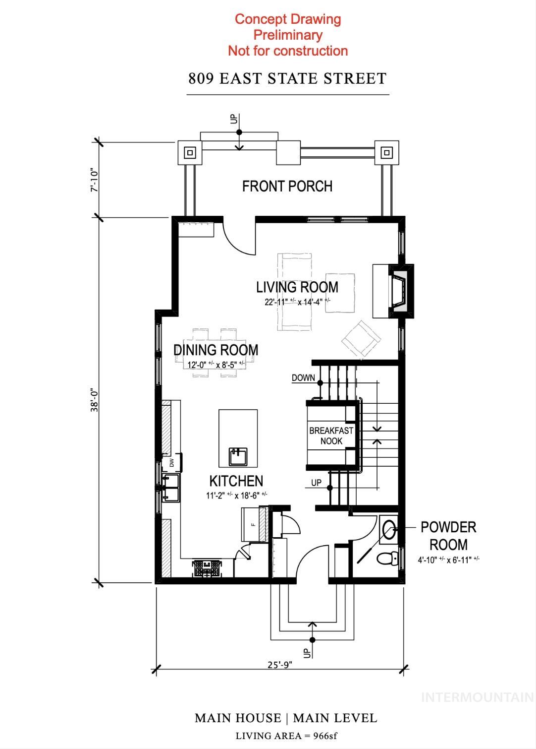
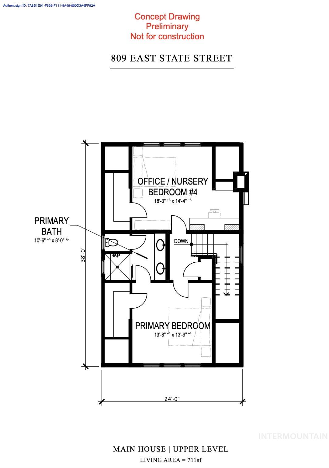
View of home floor plan
-
View of floor plan / room layout
-
View of property floor plan
A rare opportunity for the buyer to build a new home in the coveted, historic East End—this property is ready to be transformed. The seller has completed the heavy lifting, investing over $100,000 and more than a year into planning, including a survey, arborist report, architectural plans, engineering and construction documents, and two rounds of Historic District Committee approvals. The sale includes the existing house and thoughtfully designed plans for a stunning 2,600+ sq. ft. home featuring 3 bedrooms, 2.5 bathrooms, and a 4th bedroom that can be used as a flex space off the primary suite. Architectural plans also incorporate an oversized one-car garage with an ADU above, offering excellent flexibility and potential for rental income. An optional builder is already identified, with estimated construction costs of approximately $300 per square foot, providing a streamlined path to completion. The city is prepared to issue building permits to the buyer upon submission of a demolition permit application by the buyer’s builder. Preliminary plans and finishes in the photos and doc’s tab. Contact the listing agent for architectural plans, builder information, or additional details. Ideally located just one block from Roosevelt Market and Elementary School, with easy access to the Boise River Greenbelt, the trails, and downtown dining. BTVA.
- Heating:
- Forced Air, Gas
- Fireplace:
- One
- Garage Capacity:
- 1
- Country:
- US
- State:
- ID
- County:
- Ada
- City:
- Boise
- Zipcode:
- 83712
- Street:
- 809 E State St
- Longitude:
- W117° 48' 57.6''
- Latitude:
- N43° 36' 38.4''
- Master Bedroom Level:
- Upper
- Bedroom 2 Level:
- Upper
- Bedroom 3 Level:
- Down
- Bedroom 4 Level:
- Down
- School District:
- Boise School District #1
- Elementary School:
- Roosevelt
- Middle School:
- North Jr
- High School:
- Boise
- Status:
- Active
- Type:
- Single Family
- Level:
- Two Story w/ Below Grade
- Tax Year:
- 2025
- Taxes:
- $2,492
- Potential Short Sale:
- No
- Age:
- 81+ Years
- Auction:
- No
- Flood Ins Required:
- No
- HUD Owned:
- No
- In Foreclosure:
- No
- Land Size:
- Sm Lot 5999 SF
- Home Owner Exempt:
- No
- HOA Frequency:
- Not Applicable
- Lot Features:
- Sidewalks, Public Road
- Water:
- City service
- Land Use:
- Historic district
Residential For Sale
809 E State St, Boise, Idaho 83712
- Property Type :
- Residential
- Listing Type :
- For Sale
- Status :
- Active
- Listing ID :
- 98979085
- Price :
- $499,000
- Bedrooms :
- 4
- Bathrooms :
- 2.5
- Apx SqFt :
- 3,119 SqFt
- Year Built :
- 1915
- Lot Area :
- 0.10 Acres
- Days on Market :
- 24
- Subdivision :
- Eastside Add.
- Update Date :
- 04/15/2026 18:17:07